1
/
su
2
Ziggiotto
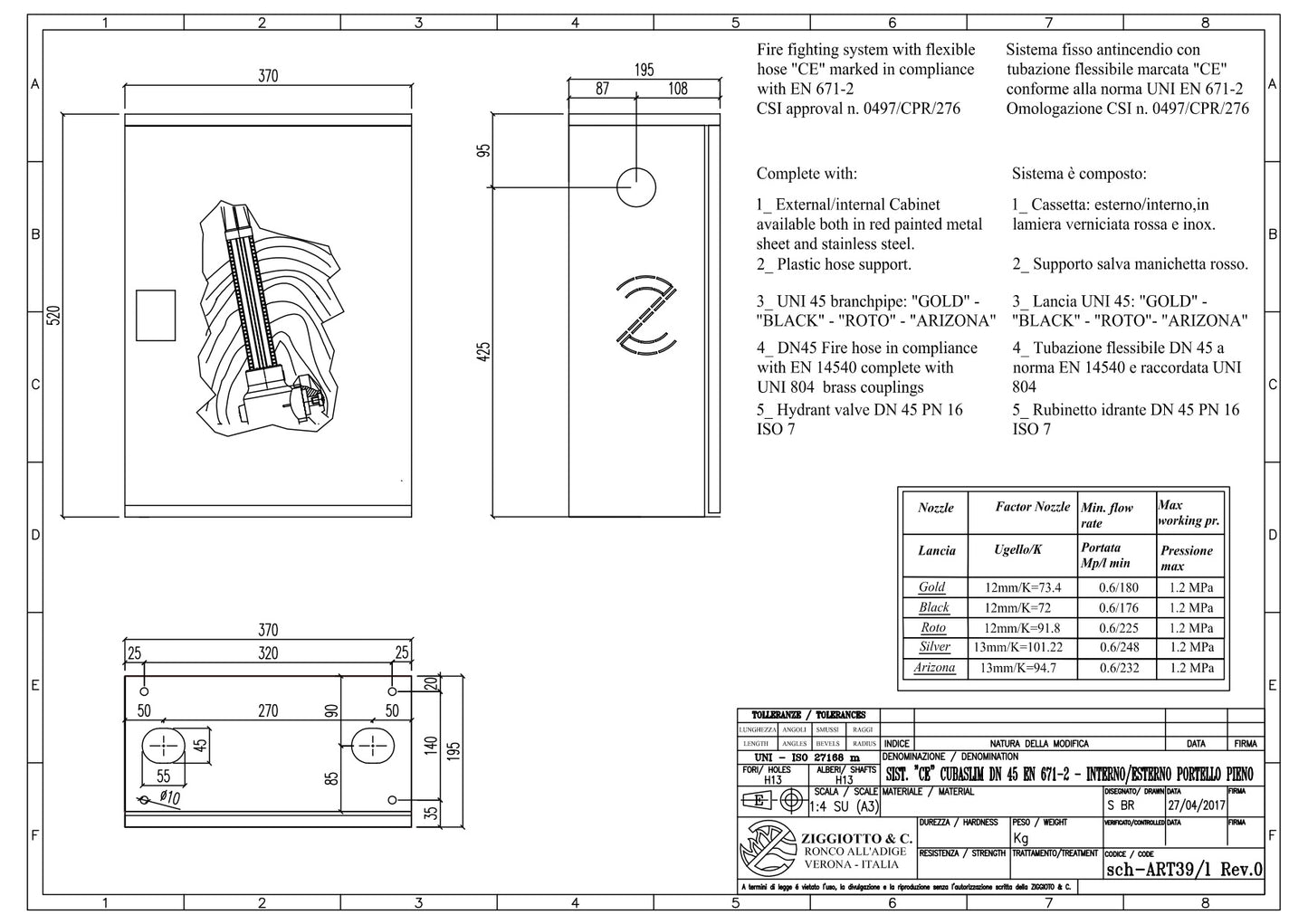
CASSETTA ANTINCENDIO IDRANTE DN45 MT25 MURO INT/EST VERNICIATA CUBASLIM COMPLETA
CASSETTA ANTINCENDIO IDRANTE DN45 MT25 MURO INT/EST VERNICIATA CUBASLIM COMPLETA
Prezzo di listino
€199,90 EUR
Prezzo di listino
€299,90 EUR
Prezzo scontato
€199,90 EUR
Prezzo unitario
/
per
Imposte incluse.
Spese di spedizione calcolate al check-out.
Impossibile caricare la disponibilità di ritiro
Sistema fisso di estinzione incendi equipaggiato con tubazione flessibile con marcatura CE conforme alle norme EN 671-2. Omologazione CSI n. 0497/CPR/276.
Cassetta con incisioni laterali sui fianchi che permettono l'installazione veloce, con sistema ZSPEED, senza interrompere l'alimentazione idrica e scaricare l'impianto.
Dimensioni 370x200x520
Share
